Description
- Spacious Grade 2 Listed Sandstone Cottage
- In Need of General Updating and Improvement
- Popular Eden Valley Village
- Living Room, Sitting Room + Kitchen
- 4 Bedrooms (1 Ground Floor with En-Suite) + House Bathroom
- Forecourt Parking + Enclosed Rear Garden
- Electric Heating
- Tenure - Freehold. Council Tax Band - D. EPC - G
This is an ideal opportunity for those looking to renovate a spacious and characterful Grate 2 listed family home in the middle of a popular Eden Valley village between Penrith and Appleby and surrounded by beautiful open countryside. The cottage, understood to be the former Post Office, has flexible accommodation currently comprising; Living Room, Sitting Room, Kitchen, Laundry Room, a Ground Floor Bedroom with En-Suite Bathroom, 3 First Floor Bedrooms and a House Bathroom. Outside there is a paved forecourt for Off Road Parking and there is an Enclosed Rear Garden.
Location
From Penrith, head East on the A66 and follow for 4.7 miles. Take the first exit off the Temple Sowerby Bypass, signposted to Culgaith and Temple Sowerby. At the T-junction, turn right and drive for approximately just over half a mile and turn left, signposted to Culgaith. After a further half a mile, fork right, signposted to Culgaith and Langwathby. after 0.8 miles, turn right, effectively straight on and Chapel Cottage is on the left after 300m.
The what3words position is; shoelaces.inches.operation
Amenities
In the village of Culgaith, there is a village school, a public house and a church There is a village shop and post office in Langwathby, approximately 3.5 miles and all main facilities are in Penrith, approximately 8.6 miles.
Penrith is a popular market town, having excellent transport links through the M6, A66, A6 and the main West coast railway line. There is a population of around 17,000 people and facilities include: infant, junior and secondary schools. There are 5 supermarkets and a good range of locally owned and national high street shops. Leisure facilities include: a leisure centre with; swimming pool, climbing wall, indoor bowling, badminton courts and a fitness centre as well as; golf, rugby and cricket clubs. There is also a 3 screen cinema and Penrith Playhouse. Penrith is known as the Gateway to the North Lakes and is conveniently situated for Ullswater and access to the fells, benefiting from the superb outdoor recreation opportunities.
Services
Mains water, drainage and electricity are connected to the property.
Heating is electric.
Tenure Freehold
The property is freehold and the council tax is band D.
Viewing
STRICTLY BY APPOINTMENT WITH WILKES-GREEN + HILL
Referal Fees
WGH work with the following provider for arrangement of mortgage & other products/insurances, however you are under no obligation to use their services and may wish to compare them against other providers. Should you choose to utilise them WGH will receive a referral fee :
Fisher Financial, Carlisle
The Right Advice (Bulman Pollard) Carlisle
Average referral fee earned in 2024 was £253.00
Please note that WGH are unable to have the contents of these particulars verified as the vendor is a deceased estate and our clients are third party legal representatives.
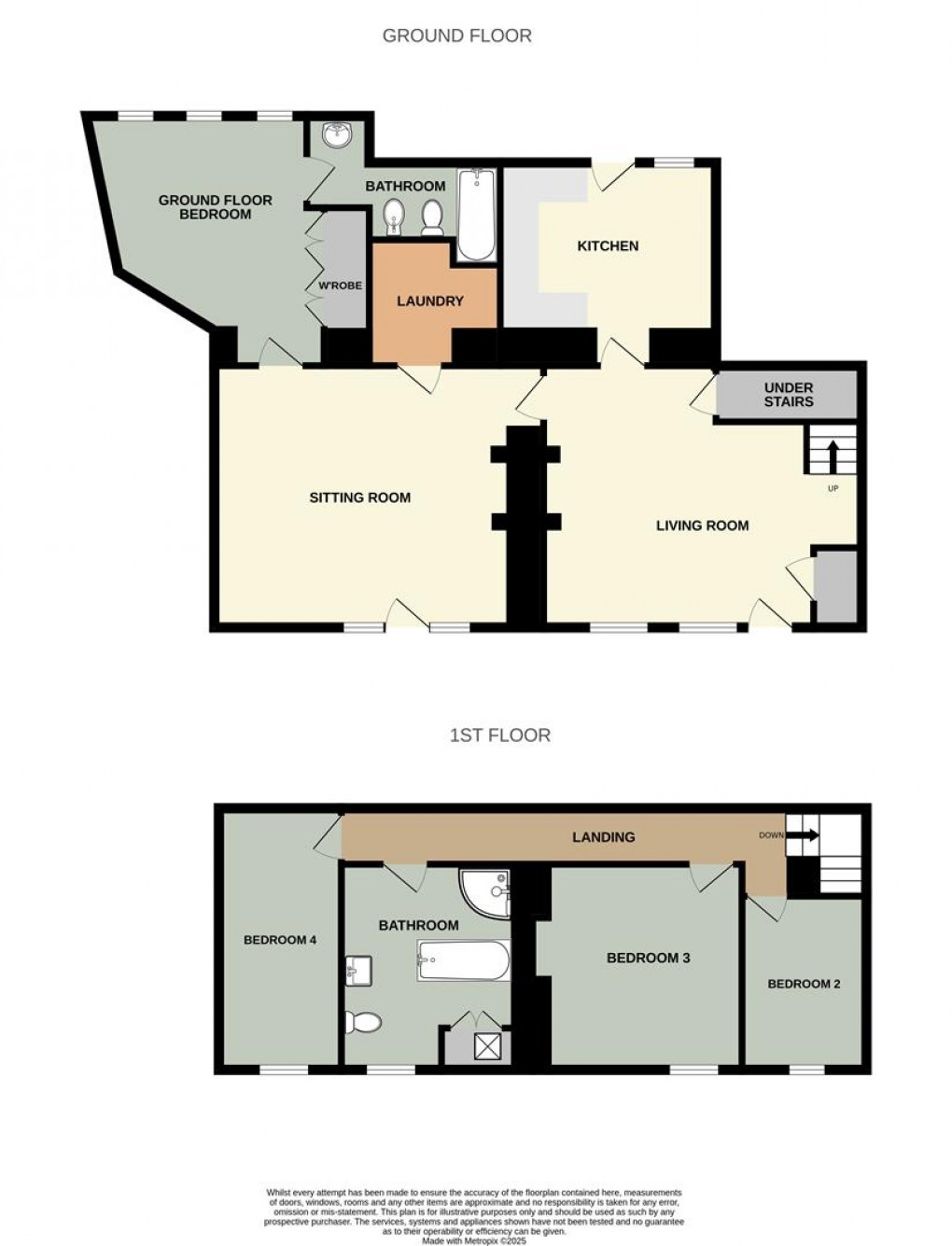
ACCOMMODATION
Entrance
Through a part glazed door to the;
Living Room (4.57m x 5.56m)
To one end of the room is an Inglenook fireplace housing an electric heater. There are exposed beams and rafters to the ceiling and two sash windows face to the front with window seats. To one corner of the room is a cupboard housing the electric meter and MCB consumer unit. Stairs lead to the first floor with a cupboard below and plank doors open to the kitchen and;
Sitting Room (4.57m x 5.74m)
A stone Ingelnook fireplace houses an electric heater. There are exposed beams and rafters to the ceiling and a part glazed door with side windows opens to the forecourt. Plank doors open to a laundry cupboard and the ground floor bedroom.
Kitchen (3.76m x 3.56m)
Fitted with wood fronted units and a wood effect worksurface incorporating a circular sink and drainer. There is space for a range cooker and a dishwasher, the floor is quarry tiled and there is a night storage heater, two sash windows and a part glazed door to the rear.
Ground Floor Bedroom (4.14m x 4.37m)
The ceiling is sloped with pine panelling. There is a built-in wardrobe and an electric radiator. Three windows face to the rear and a plank door opens to the;
En-Suite
Fitted with a bath, a wash basin, a toilet and a bidet. There is a window to the rear, a heated towel rail and a wall mounted fan heater.
Laundry Cupboard
With plumbing for a washing machine.
First Floor-Landing
Having exposed beams to the ceiling and two double glazed Velux roof lights giving natural light.
Bedroom Two (3.02m x 2.18m)
With exposed beams to the ceiling, exposed floorboards and a sash window to front.
Bedroom Three (3.58m x 3.66m)
There is a feature stone Inglenook fireplace, exposed beam to the ceiling, exposed floorboards and a sash window to the front.
Bedroom Four (4.57m x 2.13m)
The ceiling is open to the apex with exposed beams and there is a sash window to the front.
Bathroom (3.58m x 3.61m)
Fitted with a panelled bath, a wash basin, a lavatory and a quadrant shower enclosure having an electric shower over. A built-in cupboard houses the electric water heater. The ceiling is open to the apex with exposed beams. The flooring is oak and there is a night storage heater and a sash window to the front.
Outside
To the front of the house is a block paved forecourt giving off-road parking.
To the rear of the house is a enclosed garden only accessible through the kitchen door.
Floorplan
EPC
To discuss this property call us:
Market your property
with Wilkes-Green + Hill Ltd
Book a market appraisal for your property today.
