Description
- Exceptional, Light and Spacious Modern Detached Family Home Circa 2,800 Sq Ft
- Village Position on the Edge of the Lake District National Park
- Impressive Entrance Hall Open into a Large Open Plan Kitchen-Dining and Sitting Room
- Living Room, Office, Utility Room + Shower Room
- 4 Double Bedrooms, En-Suite + Dressing Room to the Principal + House Bathroom
- Air Source Heat Pump, 4KW Solar Panels + High Level Of Insulation - EPC A
- Off Road Parking, Double Garage, Car Port + Excellent Attic Storage
- Tenure Freehold. Council Tax Band - E. A Local Occupancy Restriction Applies
Nestled in the charming village of Penruddock on the fringe of the Lake District National Park, this stunning detached house offers a perfect blend of modern living and rural tranquillity. Built in 2016, the property boasts an impressive 2,800 square feet of living space, providing ample room for families or those who enjoy entertaining. As you step inside, you are greeted by a remarkable entrance hall which opens into the impressive kitchen dining room, and sitting room, designed to create a warm, light and inviting atmosphere. This spacious layout is perfect for both everyday living and hosting gatherings with friends and family. The kitchen is equipped with contemporary fixtures, ensuring that it is both functional and stylish. There is also a second Living Room when privacy is required. The property is not only aesthetically pleasing but also environmentally friendly, featuring an air source heat pump and solar panels that contribute to energy efficiency and sustainability. This thoughtful design allows for comfortable living while reducing your carbon footprint. In addition to the generous living areas, the house includes a double garage and a carport, providing ample parking and storage options. The large attic store further enhances the practicality of this home, offering additional space for belongings or hobbies. With its modern amenities and picturesque location, this amazing property in Penruddock is an exceptional opportunity for those needing a large family home in a wonderful semi rural setting
Location
From Penrith, head west on the A66 and drive across the motorway and the next roundabout. After the end of the dual carriageway, take the 1st right hand turn, signposted to Penruddock. Drive into the village, take the first left turn, just beyond “The Birds Bistro” and Brogan House is approximately 100m on the right hand side.
Amenities
In the village of Penruddock there is a school, church, sub Post Office and public house with restaurant.
All main facilities are in Penrith, approximately 6.5 miles, a popular market town, having excellent transport links through the M6, A66, A6 and the main West coast railway line. There is a population of around 17,000 people and facilities include: infant, junior and secondary schools. There are 5 supermarkets and a good range of locally owned and national high street shops. Leisure facilities include: a leisure centre with; swimming pool, climbing wall, indoor bowling, badminton courts and a fitness centre as well as; golf, rugby and cricket clubs. There is also a 3 screen cinema and Penrith Playhouse. Penrith is known as the Gateway to the North Lakes and is conveniently situated for Ullswater and access to the fells, benefiting from the superb outdoor recreation opportunities.
Penruddock is just under 12 miles from Keswick.
Services
Mains water, drainage and electricity are connected to the property. Heating is from an air source heat pump and there are 4KW solar panels
Tenure
The property is freehold and the council tax is band F.
Local Occupancy Restriction
The following local occupancy restriction applies to Brogan House:
The dwellinghouse(s) hereby permitted shall not be occupied otherwise than by a Person with a Local Connection as his or her Only or Principal Home, or the widow or widower of such a person, and any dependents of such a person living with him or her.
The Occupant will supply to the Local Planning Authority (within 14 days of the Local Planning Authority's written request so to do) such information as the Authority may reasonably require in order to determine whether this condition is being observed. In this condition the following definitions apply:
'Person with a Local Connection' means an individual who before taking up occupation of the dwelling satisfies one of the following conditions:
(1) The person has been in continuous employment in the Locality defined for at least the last nine months and for a minimum of 16 hours per week immediately prior to occupation; or
(2) The person needs to live in the Locality defined because they need substantial care from a relative who lives in the Locality defined, or because they need to provide substantial care to a relative who lives in the Locality defined. Substantial care means that identified as required by a medical doctor or relevant statutory support agency; or
(3) The person has been continuously resident in the locality defined for three years immediately prior to:
a) Needing another dwelling resulting from changes to their household, including circumstances such as getting married, divorced, having children, or downsizing.
b) Undertaking full-time post-secondary education or skills training and is returning to the locality defined within 12 months of its completion, or
c) being admitted to hospital, residential care or sentenced to prison, and are returning to the locality defined within 12 months of their discharge/release, or
(4) The person is a person who –
a) Is serving in the regular forces or who has served in the regular forces within five years prior to occupation;
b) Has recently ceased, or will cease to be entitled, to reside in accommodation provided by the Ministry of Defence following the death of that person’s spouse or civil partner where -
i. The spouse or civil partner has served in the regular forces; and
ii. Their death was attributable (wholly or partly) to that service; or
c) Is serving or has served in the reserve forces and who is suffering from a serious injury, illness or disability which is attributable (wholly or partly) to that service 'Locality' shall mean the administrative areas of: Bampton, Barton,
Lowther, Martindale, Matterdale, Patterdale, and those parts of the Parishes of Askham, Dacre, Hutton, Mungrisdale, Shap Rural, and Thrimby which lie within the administrative area of the Lake District National Park.
An 'Only or Principal Home' is a dwellinghouse which is occupied continuously for a minimum period of six months in every 12 month period.
Any prospective purchase will need to satisfy themselves that they meet the criteria and can make enquiries with the Lake District Planning Board
Planning@lakedistrict.gov.uk or call 01539 724555.
https://www.lakedistrict.gov.uk/
Referal Fees
WGH work with the following provider for arrangement of mortgage & other products/insurances, however you are under no obligation to use their services and may wish to compare them against other providers. Should you choose to utilise them WGH will receive a referral fee :
Fisher Financial, Carlisle
The Right Advice (Bulman Pollard) Carlisle
Average referral fee earned in 2024 was £253.00
Viewing
STRICTLY BY APPOINTMENT WITH WILKES-GREEN + HILL
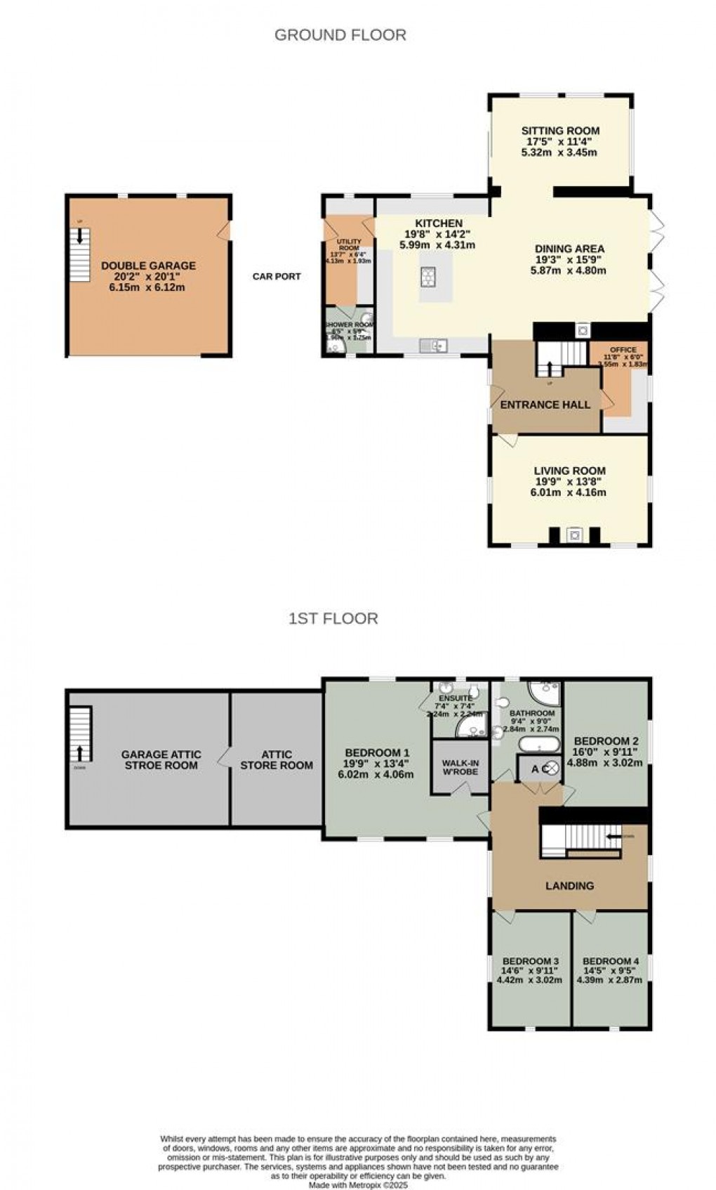
ACCOMMODATION
Main Entrance
Through a multi locking security door with double glazed windows to either side into the;
Hallway (3.56m x3.78m)
Dog leg stairs with heavy oak spindles, handrail and newel posts lead to the first floor. The ceiling has recessed LED lighting and the flooring is wood effect LVT with underfloor heating. Oak panelled doors lead to the office and living room and there is a broad opening to the;
Open Plan Dining Kitchen Dayroom (5.99m x max x 4.80m min px 10.36m)
The kitchen area is fitted with a range of hand painted Thwaite Holmes units around three sides with a quartz composite worksurface incorporating under mounted one and a half bowl stainless steel single drainer sink with carved drainer and mixer tap. A large central island unit, including an oak block breakfast bar, also has the quartz composite worksurface and a Neff induction hob with a extractor hood and recessed lighting above. The kitchen equipment includes two Neff electric ovens, a Neff microwave, a larder fridge, a freezer and a dishwasher. The units include a carousel corner, several pan drawers and many of the cupboards include internal lighting. Timber framed double glazed windows face to the front and rear.
The dining area has two pairs of double glazed patio doors opening to the side and there is a recessed multi fuel stove mounted to one wall.
The ceiling throughout the kitchen dining area has zoned LED downlights and the flooring is wood effect LVT with underfloor heating
A doorway from the kitchen opens into the utility area and there is a broad opening to the;
Sitting Room (3.45m x 5.31m)
A large unit built into one wall has a mounting point for a flatscreen TV. The ceiling is open full height with recessed LED downlights, the flooring is LVT with underfloor heating and there are double glazed windows to two sides and a double glazed sliding door with side window opens to the rear garden.
Living Room (4.17m x 6.02m)
A multi fuel stove is set in a sandstone chimney breast with sandstone hearth and green oak mantle. There is underfloor heating, a five amp lighting circuit and TV, telephone and telecoms points. Double glazed windows face to either side and to the front.
Office (3.56m x 1.85m)
There is a built-in desk to two sides with drawers, storage cabinets and shelving. There is a telephone point, the ceiling has recessed downlights and the flooring is LVT with underfloor heating. A double glazed window faces to the side.
Laundry Room/Utility (4.14m x 1.93m)
Accessed from the kitchen the utility room is fitted with range of units and a wood effect worksurface incorporating a stainless steel single drainer sink with mixer tap. There is plumbing for a washing machine and space for a tumble dryer. The ceiling has recessed downlights, the flooring is LVT with underfloor heating and there is an extractor fan and a double glazed window to the rear. There is a wall mounted MCB consumer units. A multiple point locking door opens to the outside and an oak panel door opens to the;
Shower Room (1.75m x 1.96m)
A contemporary wash basin and toilet are set in a vanity unit to one side with storage cupboards and a concealed cistern and there is a quadrant shower enclosure having a Myra electric shower over marine boards to two sides. The ceiling has recessed downlights, the flooring is LVT and there is an electric heated towel rail and extractor fan and a double glazed window to the front.
First Floor-Landing
Large double glazed windows to two sides gives excellent natural light. There is an oak handrail and spindles around the stairwell, two radiators, a ceiling trap to the roof space and recessed downlights. A large airing cupboard houses a 300 Litre pressurised hot water tank. Oak doors lead off to the bedrooms and bathroom.
Bedroom One (5.99m x 4.04m)
A double glazed window to the rear gives a view toward Motherby and two double glazed windows to the front, give a view across the surrounding countryside to the Lakeland fells. There are three radiators, two bed headlights and a wall point for a television. Doors lead to the walk-in wardrobe and;
En-Suite (2.24m x 2.24m)
Fitted with a contemporary wash basin and toilet set in a vanity unit with storage cabinet and a concealed cistern. There is a large quadrant shower enclosure with marine boards to 2 sides and a mains fed shower. The ceiling has recessed downlights, the floor is porcelain tiled and there is a heated towel rail, an extractor fan and a small double glazed window.
Walk in Wardrobe (2.24m x 2.08m)
Having hanging rails and drawer storage.
Bedroom Two (4.88m x 3.02m)
There is a modern radiator, a wall point for a television and a double glazed window to the side.
Bedroom Three (4.42m x 3.02m)
There is a radiator, a wall mounting for a TV point and double glazed windows to the side and front, the front giving a view across the surrounding countryside to the Lakeland fells.
Bedroom Four (4.39m x 2.87m)
There is a radiator, a wall mounting for a TV point and double glazed windows to the side and front, the front giving a view across the surrounding countryside to the Lakeland fells.
House Bathroom (2.84m x2.74m)
Fitted with contemporary wash basin and toilet set in a unit with cupboards and a concealed cistern. There is a quadrant shower enclosure with a Myra mains fed shower over and marine boards to two sides and a separate bath with centre mounted taps. The ceiling has recessed downlights and a double glazed roof light. The flooring is porcelain tiled and there is a heated towel rail, an extractor fan and a small double glazed window.
Access to Brogan house is across a short shared ownership entrance bay leading to a private tarmac drive with a shrub bed to one side and a gate to the large tarmac forecourt allowing off road parking for several vehicles and access to the garage.
To the front of the house the garden is laid to lawn with a low stone wall edge to the drive and a beach hedge to the outer boundary.
The lawn extends along the side of the house where there is an open porch by the patio doors from the dining area to the rear of the house is a large stone patio area which is accessed from the sitting room patio door and is open to a generous garden area area to lawn with a hedge boarded to the rear.
Double Garage (6.15m x 6.12m)
Having an automatic roller vehicle door, lights and power points. A multi locking security door opens into the carport and two small double glazed windows faces to the rear.
Steps from the garage lead up to a
Store Room (5.16m x 5.94m limited headroom)
With recessed ceiling lights, 2 double radiators and a door to a further;
Store Room (5.16m x 3.51m limited headroom)
Having laminate flooring, a double radiator, recessed downlights and a TV point for a wall mounted TV.
Connecting the garage to the house is a carport open to both front and rear with recessed downlights and power points.
Floorplan
EPC
To discuss this property call us:
Market your property
with Wilkes-Green + Hill Ltd
Book a market appraisal for your property today.
