Description
- Spacious Barn Conversion with Large Attached Barn/Garage
- Overlooking the Green in a Peaceful Fellside Village
- Living Room, Kitchen with Pantry, Dining Room, WC/Utility Room + Boot Room
- 4 Double Bedrooms, En-Suite Shower Room + House Bathroom
- Front Terrace and Small Enclosed Rear Garden
- Off Road Parking for 4 Cars
- uPVC Double Glazing, Oil Central Heating + Multi Fuel Stove
- Tenure - Freehold. Council Tax Band - TBC. EPC - E
Nestled in the tranquil fellside village of Blencarn, just 10 miles from the centre of Penrith and surrounded by gorgeous open countryside, The Barn at Blencarn Hall is a smart, spacious and comfortable home with a large adjoining barn/garage offering further potential. The accommodation comprises: Entrance Hall, Living Room, Kitchen with Pantry, Dining Room, Boot Room, WC/Utility Room, 4 Double Bedrooms, En-Suite Shower Room and a House Bathroom. Outside there is a Front Terrace overlooking the village green, a small enclosed Rear Garden which enjoys the afternoon and evening sun, an Off Road Parking Area for at least 4 cars and a large Barn, with 2 vehicle doors which offers excellent storage, workshop space or even to extend the living space. The barn also benefits from uPVC Double Glazing, Oil Central Heating from a Condensing Boiler and there is a Multi Fuel Stove in the living room.
Location
From the centre of Penrith, head south to the A66 and take the first exit at the roundabout, signposted to Langwathby and Alston. Follow the road through Langwathby and then take the first right hand turn, signposted to Skirwith. In the middle of Skirwith, turn right at the junction and follow the road out of the village and take the first left hand turn, signposted to Blencarn. In Blencarn, turn left into the centre of the village, The Barn is on the left.
The what3words position is; hourglassthird.poems
Amenities
Blencarn is a beautiful, fellside village, surrounded by lovely open countryside with excellent walking opportunities and has a fly fishing pond. In the nearby village of Culgaith, approximately 3 miles there is an infant/primary school, a church and a public house. In Langwathby, approximately 5 miles, there is an infant/primary school, a church, a Sub Post Office and general store, a public house and a railway station on the Settle Carlisle line. All main facilities are in Penrith, a popular market town, having excellent transport links through the M6, A66, A6 and the main West coast railway line. There is a population of around 17,000 people and facilities include: infant, junior and secondary schools. There are 5 supermarkets and a good range of locally owned and national high street shops. Leisure facilities include: a leisure centre with; swimming pool, climbing wall, indoor bowling, badminton courts and a fitness centre as well as; golf, rugby and cricket clubs. There is also a 3 screen cinema and Penrith Playhouse. Penrith is known as the Gateway to the North Lakes and is conveniently situated for Ullswater and access to the fells, benefiting from the superb outdoor recreation opportunities.
Services
Mains water, drainage and electricity are connected to the property.
Heating is by fuel oil.
Tenure
The property is freehold and the council tax is band is to be assessed
Referal Fees
WGH work with the following provider for arrangement of mortgage & other products/insurances, however you are under no obligation to use their services and may wish to compare them against other providers. Should you choose to utilise them WGH will receive a referral fee :
Fisher Financial, Carlisle
The Right Advice (Bulman Pollard) Carlisle
Average referral fee earned in 2024 was £253.00
Viewing
STRICTLY BY APPOINTMENT WITH WILKES-GREEN + HILL
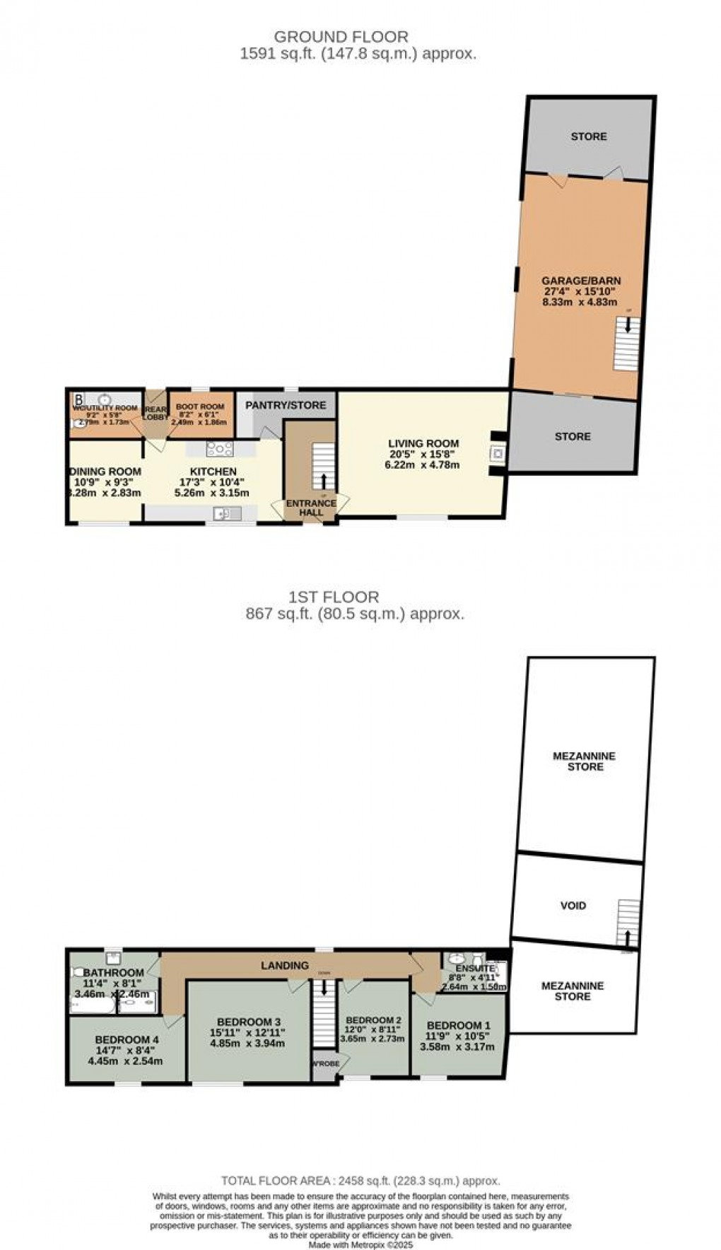
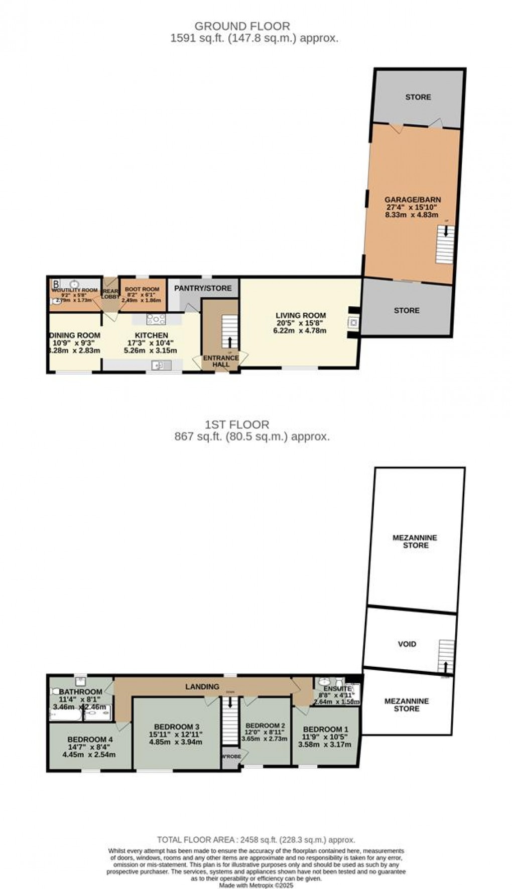
ACCOMMODATION
Entrance
Through a composite security door to the;
Hallway (3.89m x 1.98m)
Stairs lead to the first floor. There is a single radiator and part glazed oak doors off to the kitchen and;
Living Room (4.78m x 6.22m)
To one end of the room is a multi fuel stove set in a brick inglenook with stone hearth and rustic oak mantel. The ceiling has a recessed downlights and there are uPVC double glazed windows to the front, looking out across the village. There is a double radiator, a TV aerial point, a satellite lead and a five amp lighting circuit.
Kitchen (3.15m x 5.26m)
Fitted to two sides with oak fronted, Shaker style units and a granite effect worksurface incorporating a stainless steel one and a half bowl single drainer sink with tiled splashback. There is space for an electric range cooker, space for an upright fridge freezer and plumbing for a dishwasher. The ceiling has recessed downlights and uPVC double glazed windows face to the front looking out across the village. An oak panelled door opens to the pantry and there is a double radiator . A part glazed oak door opens to the rear hall and there is a broad opening to the;
Dining Room (3.28m x 2.82m)
Having recessed ceiling lights, a single radiator , TV point and telephone point. uPVC double glazed windows face to the front looking up the village.
Rear Hall
A composite security door opener and doors lead to the;
Cloakroom & Boot Room (1.85m x 2.49m)
Having recessed downlights to the ceiling, a single radiator and a uPVC double glazed window to the rear.
WC/Utility Room (1.73m x 2.79m)
Fitted with a toilet and a base unit with granite effect worktop incorporating a stainless steel circular sink with mixer tap and tiled splashback. Below the worksurface there is plumbing for a washing machine. A floor mounted Worcester oil fired condensing boiler provides the hot water and central heating. The ceiling has recessed downlights and there is an extractor fan and a wall mounted MCB consumer unit.
First Floor - Landing
Having recessed ceiling downlights, a single radiator and a uPVC double glazed window to the rear. Oak panel doors lead off.
Principal Bedroom Suite
Oak panel doors from a lobby area lead off to the shower room and;
Bedroom (3.18m x 3.58m)
A uPVC double glazed window to the front looks out across the village. There is a single radiator and a TV aerial point.
Shower Room (1.50m x 2.64m)
Fitted with a contemporary lavatory, a wash basin set in a vanity unit with cabinets below and the mirror above and a large shower enclosure tiled to three sides with a Mira mains shower. The ceiling has recessed downlights and there is a single radiator and an extractor fan.
Bedroom Two (3.66m x 2.72m)
There is a recessed wardrobe, a single radiator, TV aerial point and uPVC double glazed window to the front.
Bedroom Three (3.99m x 4.85m)
Having a single radiator , a TV aerial point, telephone point and a uPVC double glazed windows to the front.
Bedroom Four (2.54m x 4.45m)
Havin a single radiator, a TV aerial point and a uPVC double glazed window to the front.
House Bathroom (2.46m x 3.45m)
Fitted with a three piece heritage suite, having a panelled bath with tiles around and a separate no step shower enclosure, tiled to three sides with a two head shower over. The ceiling has recessed downlights and there is an extractor fan, a shaver socket, a double radiator and a uPVC double glazed window to the rear.
Outside
Access to the barn is along a shared access lane.
Across the front of the barn is a large block paved terrace forecourt allowing opportunity for outdoor furniture and giving a lovely view across the village.
A gate to the side of the barn opens to a shared driveway which leads to Blencarn Hall and to a parking area to the rear of the barn for four cars
Garage (8.33m x 4.83m)
Having two up and over vehicle doors and lights. To the end of the garage is a storeroom and steps lead up to a first floor storage area.
Immediately to the rear of the house is a small enclosed garden area laid mainly to artificial grass and having a westerly aspect enjoys the afternoon and evening sun.
On the opposite side of the drive to the parking is an outbuilding in two sections one housing the oil tank.
Floorplan
EPC
To discuss this property call us:
Market your property
with Wilkes-Green + Hill Ltd
Book a market appraisal for your property today.
